
Левая колонка
Фильтр
01:24
Поделился заметкой
Поделился темой
0 комментариев
1 раз поделились
1 класс
- Класс
поделился публикацией
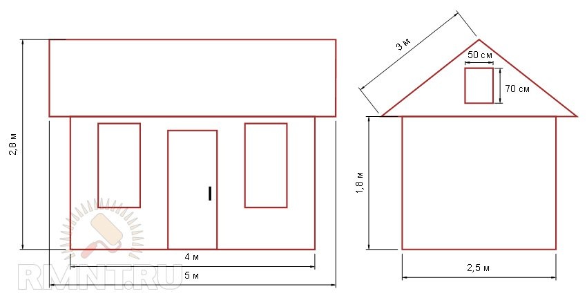
Как построить курятник своими руками: чертежи и фото
Вы решили заняться разведением несушек, но не знаете, как соорудить для них подходящее помещение? В нашей статье представлено пошаговое руководство по строительству курятника, начиная от выбора проекта строения, и заканчивая правильной расстановкой насестов и кормушек. Курятник необходимо устанавливать в тихом месте, вдали от шума транспорта и пешеходных дорог. Место должно быть достаточно освещенным и хорошо проветриваемым, но без сквозняков (причем место, где будут гулять куры, должно быть затененное). Идеальный вариант, если курятник и территория выгула находятся в тени деревьев или рядом с ягодными кустарниками. Если вы проживаете во влажном климате — необходимо позаботиться об осушении почвы под курятником или поднятии самой постройки на возвышение. Жилище для кур необходимо правильно ориентировать по сторонам света. Окна желательно расположить на восточной стене строения, а вход — на южной. Для обеспечения безопасности птиц, курятник и территорию выгула огораживают забором. При п
Показать еще
0 комментариев
4 раза поделились
32 класса
- Класс
На этом пока всё
Войдите в ОК, чтобы посмотреть всю ленту
505
- Людмила Букланова (Манахова)с. Алешня (Дубровский район)
- Алексaндр MeльцeвМосква
- Наталья СмирноваБрянск
342
- Доступная Дубровка2147 подписчиков
- Дубровка - доска объявлений . Брянская область.11685 подписчиков
- ЖуковкаИнФоРмАцИяЖуковка16602 подписчика
- БрянскНОВОСТИ.RU19716 подписчиков
- Новости Брянска45488 подписчиков

